Login

Energiezuinige, kwaliteitsvolle nieuwbouw woning

€354.266
De Meiblomme 3, 8800 Roeselare
Ref. BR/LVH/TK/1716

Bebouwing

Bouwjaar
2021
Woonoppervlakte
172m2
Grondoppervlakte
213m2
Aantal slaapkamers
3
Algemeen

In de authentieke gemeente Hooglede woont u hier rustig en toch centraal gelegen. U zit letterlijk overal dichtbij, scholen, winkels, restaurants, openbaar vervoer, alles is in feite gewoon om de hoek. Er is een goede bereikbaarheid, met een vlotte verbinding naar Roeselare.

De woningen bevinden in een doodlopende straat en bieden de nodige privacy en veiligheid. De constructie bestaat uit een houtskelet, afgewerkt met keramische gevelstenen en dakpannen. Twaalf zonnepanelen zorgen voor hernieuwbare energie en zorgen samen met de modernste technieken en de super geïsoleerde buitenzijde voor een zeer energiezuinige woning.

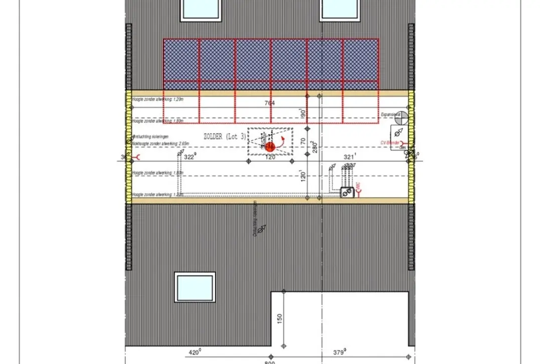
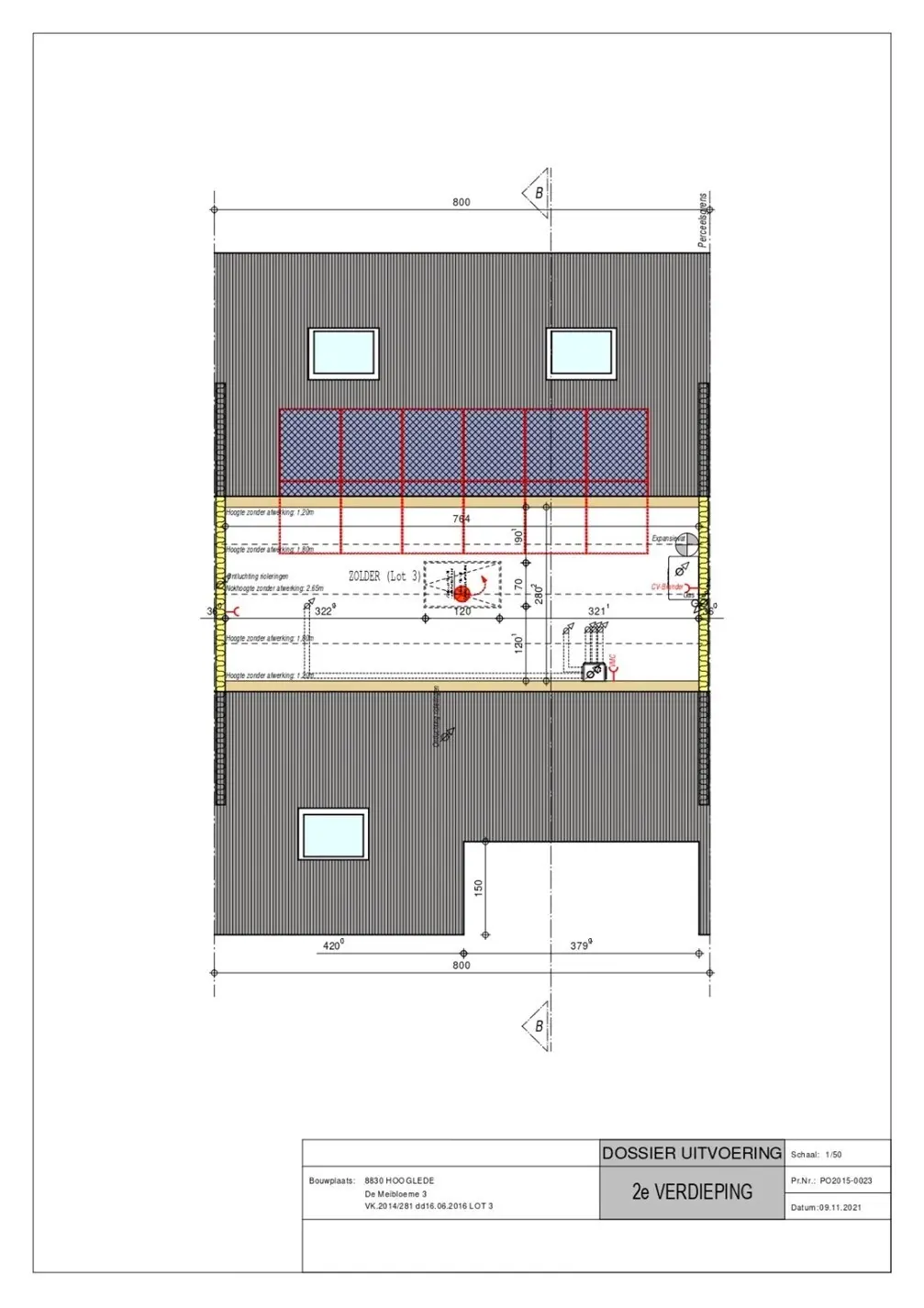
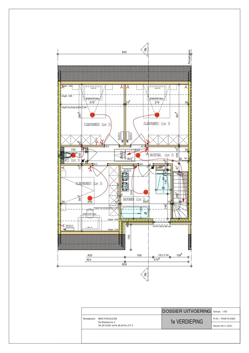
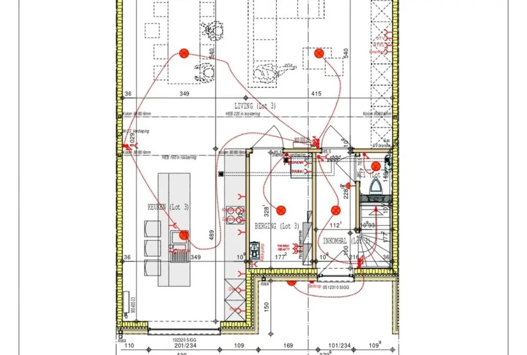
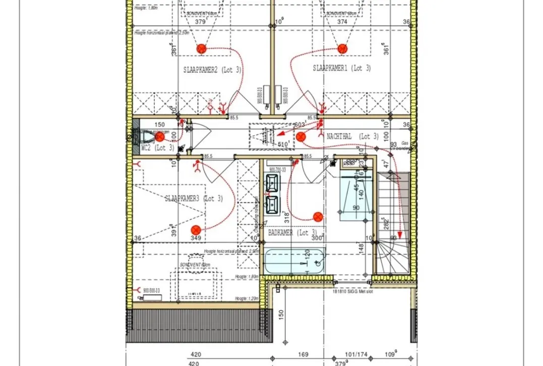
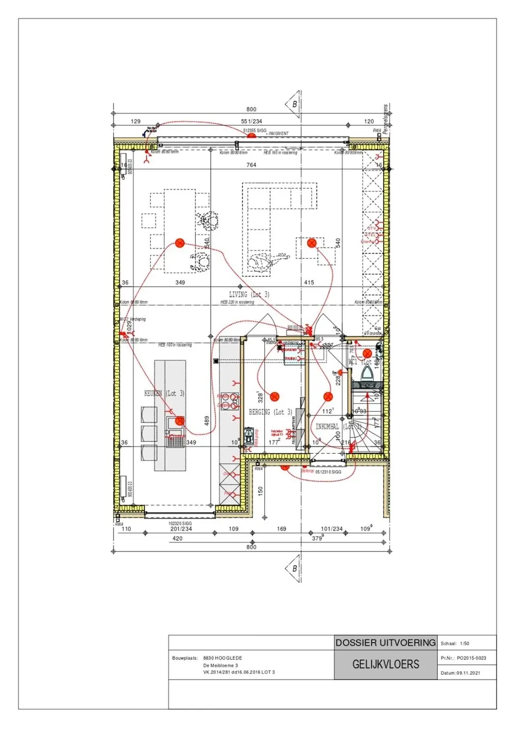
Huisnummer 3 is een gesloten nieuwbouw op een perceel van 213 m² met een bruto bewoonbare oppervlakte van 172 m² verdeeld over 3 bouwlagen. Op het gelijkvloers is er een inkom met gastentoilet, een ruime woonkamer met volledig uitgeruste keuken en een berging die tevens dienst doet als fietsberging, met een aparte inkom. Op het verdiep zijn er 3 slaapkamers, een apart toilet en een badkamer met bad, douche en dubbele lavabo. De zolder is toegankelijk via een inklapbare trap.

U kunt deze woning nog volledig naar eigen smaak en keuze inrichten en zelf de materialen voor de afwerking kiezen. De woning is reeds gebouwd en te bezichtigen, de afwerking kan vlot ingepland worden. De aangeboden prijs is exclusief kosten.

Indien u een bezoek wenst te brengen aarzel dan niet om contact op te nemen.

Details

Bebouwing

Bouwjaar
2021
Woonoppervlakte
172m2
Grondoppervlakte
213m2
Aantal slaapkamers
3
EPC Index
40.00kWh / (m2jaar)

Ruimtelijke ordening

Stedenbouwkundige vergunning
ja
Rechterlijke beslissing
nee
Voorkooprecht
nee
Verkavelingsvergunning
ja
Stedenbouwkundige bestemming
Woon­gebied

Comfort

Tuin
Ja
Ventilatie
Ja
Documenten
    Plannen
Terug naar overzicht

Voel je de aantrekkingskracht?

Laat je gegevens achter en wij nemen graag contact met je op voor een afspraak.

En wat met je eigen woning?
Verkopen?

Alle tijdslots zijn volgeboekt!
Graag even geduld, de verantwoordelijke voegt binnenkort nieuwe slots toe.

© 2026 Bricx
design newdays - development kubrick
Bricx maakt gebruik van cookies om je gebruikerservaring te optimaliseren. Door op 'OK' te klikken ga je akkoord met het plaatsen van deze cookies.
gratis schatting