Login

Groot-Bijgaarden

€264.550
Alfons Gossetlaan 32, 1702 Groot-Bijgaarden
Ref. BR/BVdM/TK/2096
Algemeen

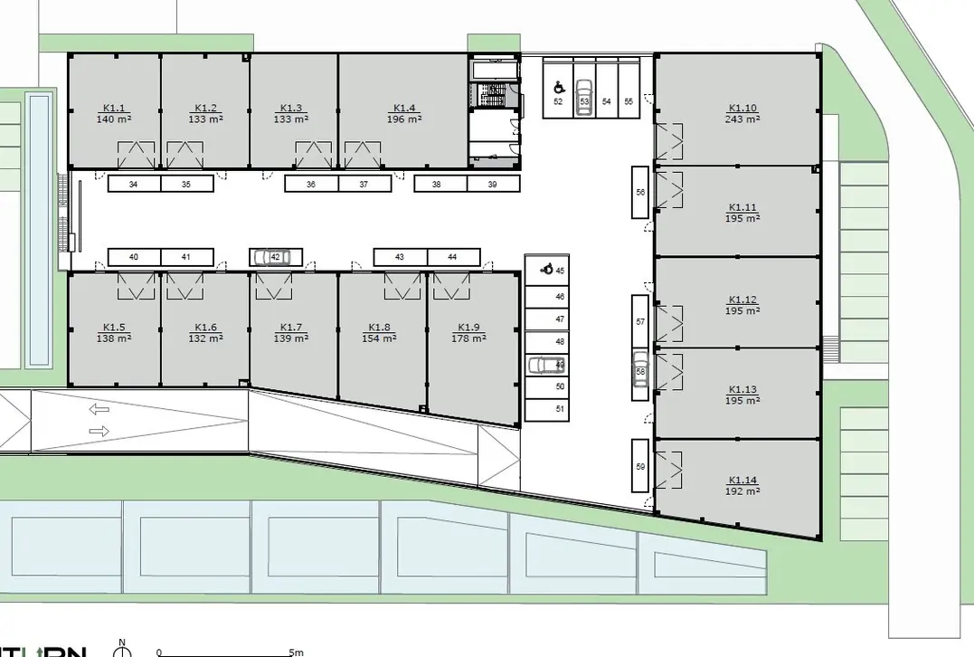
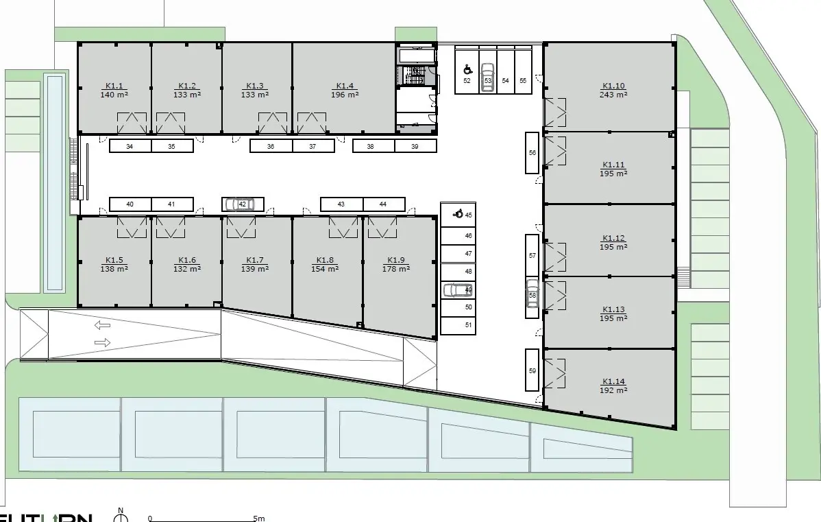
Nieuwe KMO-units TE KOOP

Op zoek naar een nieuwe KMO-unit op 2 minuten rijden van de ring rond Brussel? Westgate biedt ruimte aan ondernemers met 4 nieuwe showrooms (van 653 - 3.000 m²) en 14 KMO-units (van 132 - 243 m²) op verdiep

Specificaties:

  • Vrije hoogte van 6 meter
  • Sectionale poort
  • Draagkracht van 2 Ton/m²
  • Oplevering Q1-Q2/2026

Deze unit heeft een oppervlakte van 133 m², met een kostprijs van 264.550 euro (exclusief overdrachtskosten).

Bel vandaag nog naar Bricx Vastgoed op het nummer 0494 26 80 70 of via brent.vdm@bricx.be en ontdek de mogelijkheden.

Details

Bebouwing

EPC Index
In aanvraag

Ruimtelijke ordening

Stedenbouwkundige vergunning
In aanvraag
Rechterlijke beslissing
In aanvraag
Voorkooprecht
In aanvraag
Verkavelingsvergunning
In aanvraag
Stedenbouwkundige bestemming
In aanvraag
Overstromingskans perceel (P-score)
D
Overstromingskans gebouw (G-score)
C
Terug naar overzicht

Voel je de aantrekkingskracht?

Laat je gegevens achter en wij nemen graag contact met je op voor een afspraak.

En wat met je eigen woning?
Verkopen?

Alle tijdslots zijn volgeboekt!
Graag even geduld, de verantwoordelijke voegt binnenkort nieuwe slots toe.

© 2025 Bricx
design newdays - development kubrick
Bricx maakt gebruik van cookies om je gebruikerservaring te optimaliseren. Door op 'OK' te klikken ga je akkoord met het plaatsen van deze cookies.
gratis schatting