Login

Stijlvol, energiezuinig nieuwbouwappartementen met ruime terrassen.

€439.495
Harelbeekstraat 1 / 15, 8550 Zwevegem
Ref. BK/LVH/TK/0556

Bebouwing

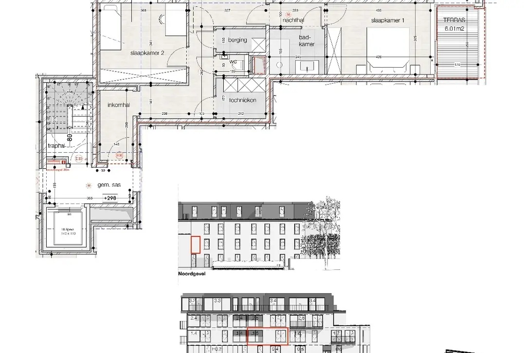
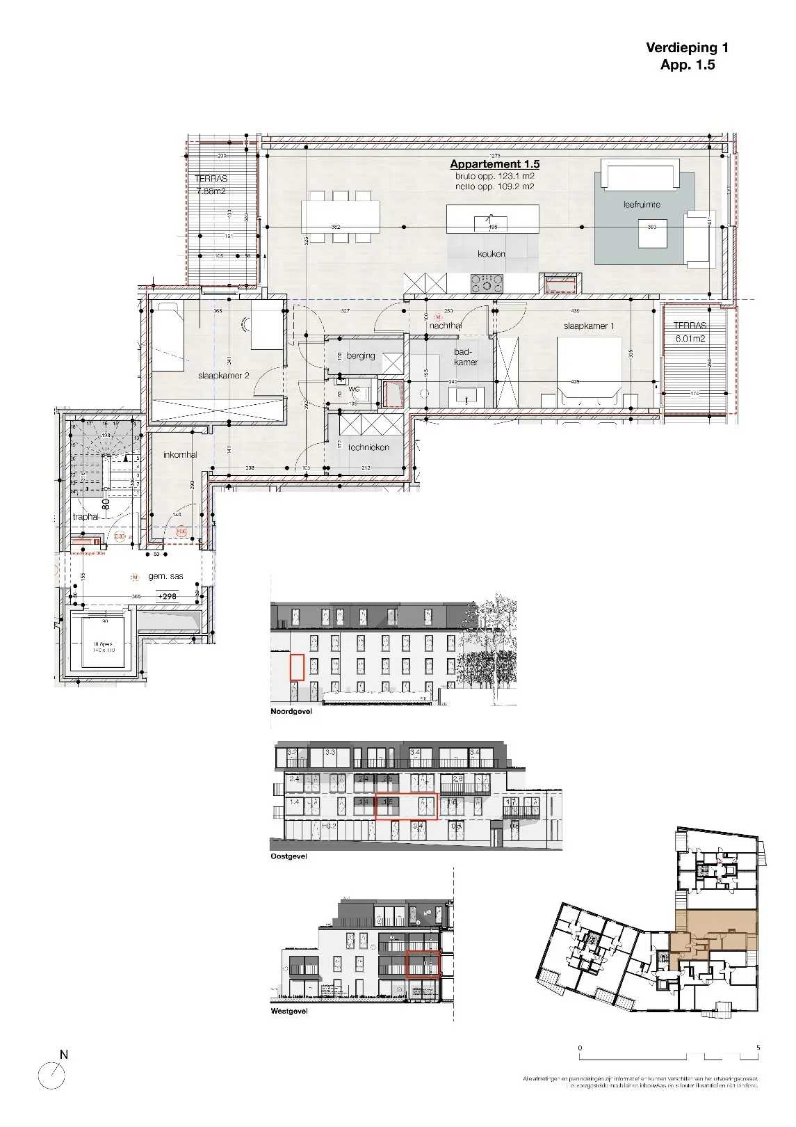
Woonoppervlakte
109m2
Grondoppervlakte
123m2
Aantal slaapkamers
2
Algemeen

Ontdek de Residentie Sint-Amandus, een eigentijds nieuwbouwproject met 23 ruime en lichtrijke appartementen, ideaal gelegen op de hoek van de Kortrijkstraat en de Harelbeekstraat, vlak bij de markt van Zwevegem.

De appartementen zijn ontworpen met oog voor comfort, kwaliteit en duurzaamheid. Dankzij de grote raampartijen geniet je van overvloedig daglicht en een prachtig zicht op de groene, rustig aangelegde binnentuin. De ruime terrassen bieden een heerlijke plek om te ontspannen in alle privacy.

✨ Troeven:

  • Centrale ligging op wandelafstand van winkels, horeca en openbaar vervoer
  • Energiezuinig en duurzaam (BEN-normen)
  • Ruime leefterrassen met groene binnentuin als uitzicht
  • Hoogwaardige afwerking met keuze naar eigen smaak
  • Ondergrondse autostaanplaatsen en bergingen beschikbaar
  • Lift aanwezig in het gebouw

Mogelijkheid tot aankoop aan verlaagd btw-tarief van 6%

Of je nu op zoek bent naar een kwalitatieve woonst of een interessante investering, Residentie Sint-Amandus combineert modern comfort, centrale ligging en duurzame kwaliteit in één uniek project.

Details

Bebouwing

Woonoppervlakte
109m2
Grondoppervlakte
123m2
Aantal slaapkamers
2
Aantal badkamers
1
EPC Index
In aanvraag

Ruimtelijke ordening

Stedenbouwkundige vergunning
ja
Rechterlijke beslissing
nee
Voorkooprecht
nee
Verkavelingsvergunning
ja
Stedenbouwkundige bestemming
Woon­gebied
Overstromingskans perceel (P-score)
C
Overstromingskans gebouw (G-score)
C

Comfort

Tuin
Ja
Terras
Ja
Terras opp
13.89m2
Ventilatie
Ja
Documenten
    Grondplan 1
Terug naar overzicht

Voel je de aantrekkingskracht?

Laat je gegevens achter en wij nemen graag contact met je op voor een afspraak.

En wat met je eigen woning?
Verkopen?

Alle tijdslots zijn volgeboekt!
Graag even geduld, de verantwoordelijke voegt binnenkort nieuwe slots toe.

© 2026 Bricx
design newdays - development kubrick
Bricx maakt gebruik van cookies om je gebruikerservaring te optimaliseren. Door op 'OK' te klikken ga je akkoord met het plaatsen van deze cookies.
gratis schatting