Energiezuinige, kwaliteitsvolle nieuwbouw woning
Maxim Roelens
Julie Meerschaert
Bebouwing
- Bouwjaar
- 2021
- Woonoppervlakte
- 160m2
- Grondoppervlakte
- 301m2
- Aantal slaapkamers
- 3
In de authentieke gemeente Hooglede woont u hier rustig en toch centraal gelegen. U zit letterlijk overal dichtbij, scholen, winkels, restaurants, openbaar vervoer, alles is in feite gewoon om de hoek. Er is een goede bereikbaarheid, met een vlotte verbinding naar Roeselare.
De woningen bevinden in een doodlopende straat en bieden de nodige privacy en veiligheid. De constructie bestaat uit een houtskelet, afgewerkt met keramische gevelstenen en dakpannen. Twaalf zonnepanelen zorgen voor hernieuwbare energie en zorgen samen met de modernste technieken en de super geïsoleerde buitenzijde voor een zeer energiezuinige woning.
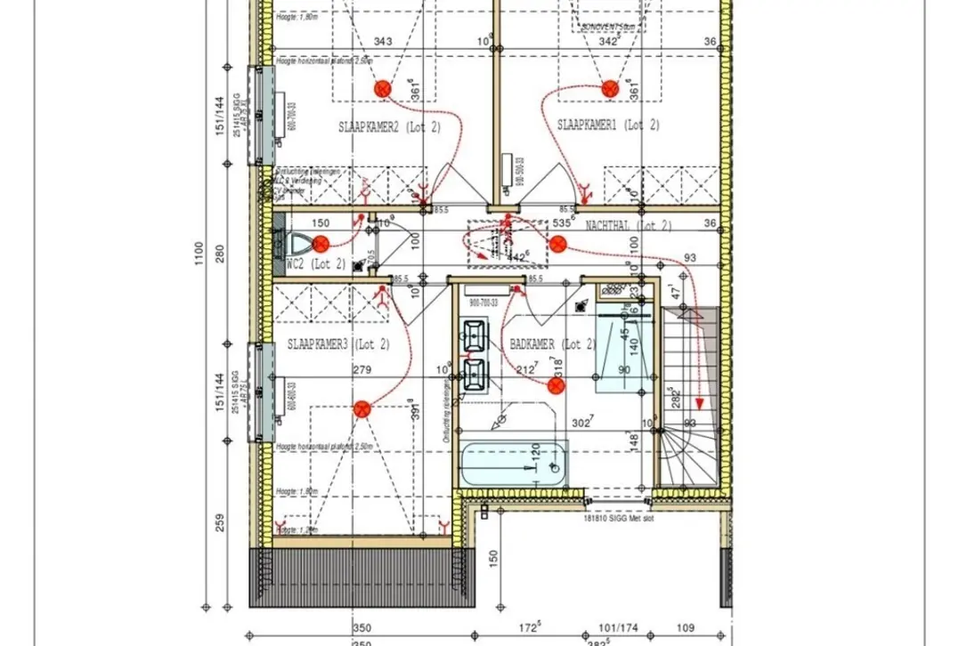
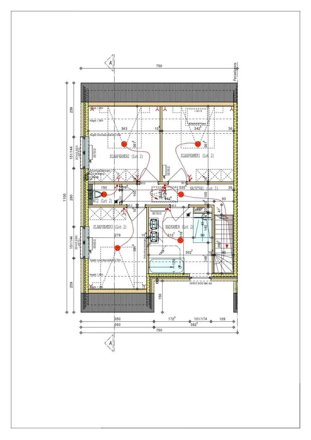
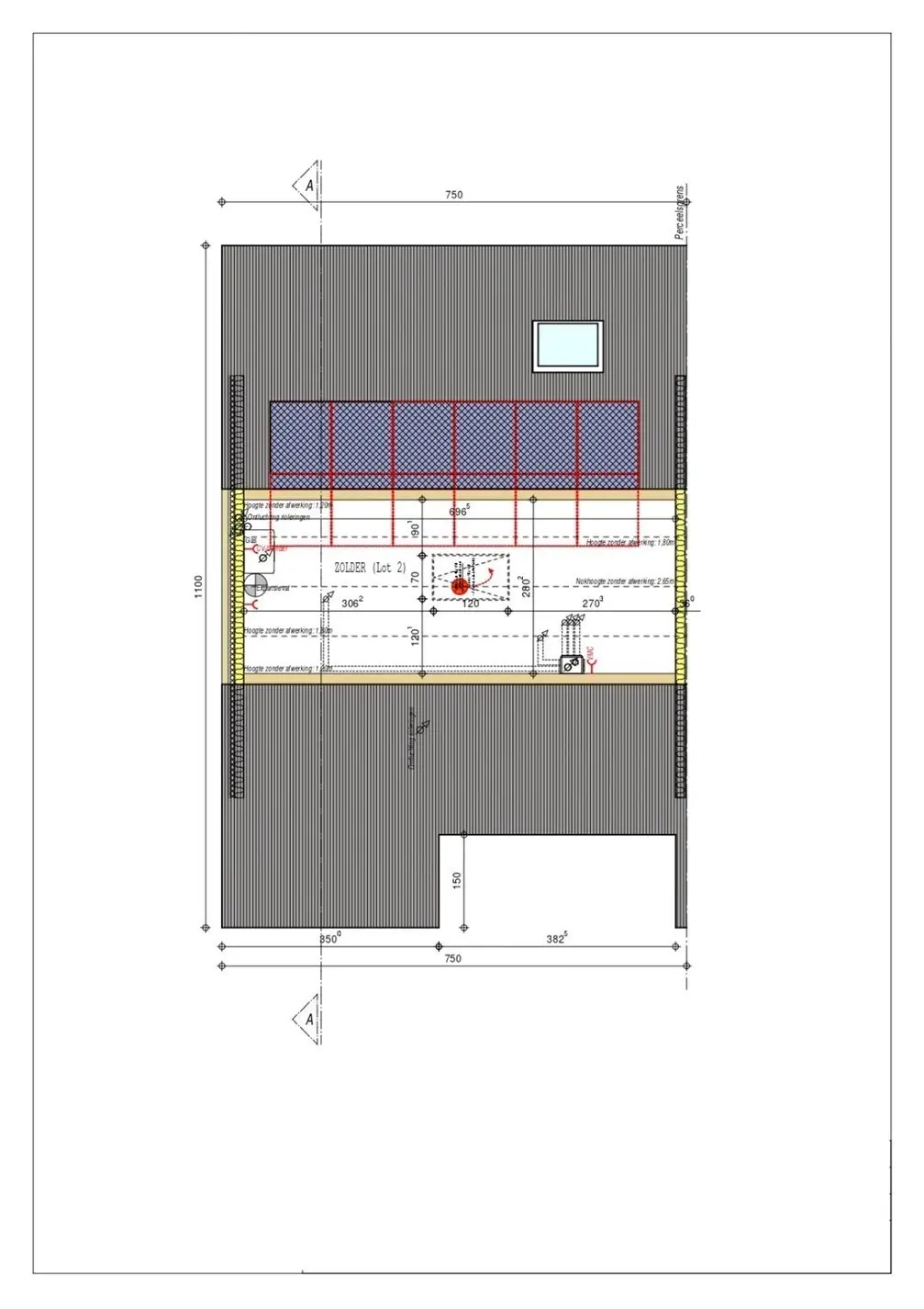
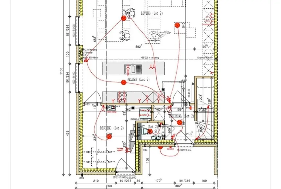
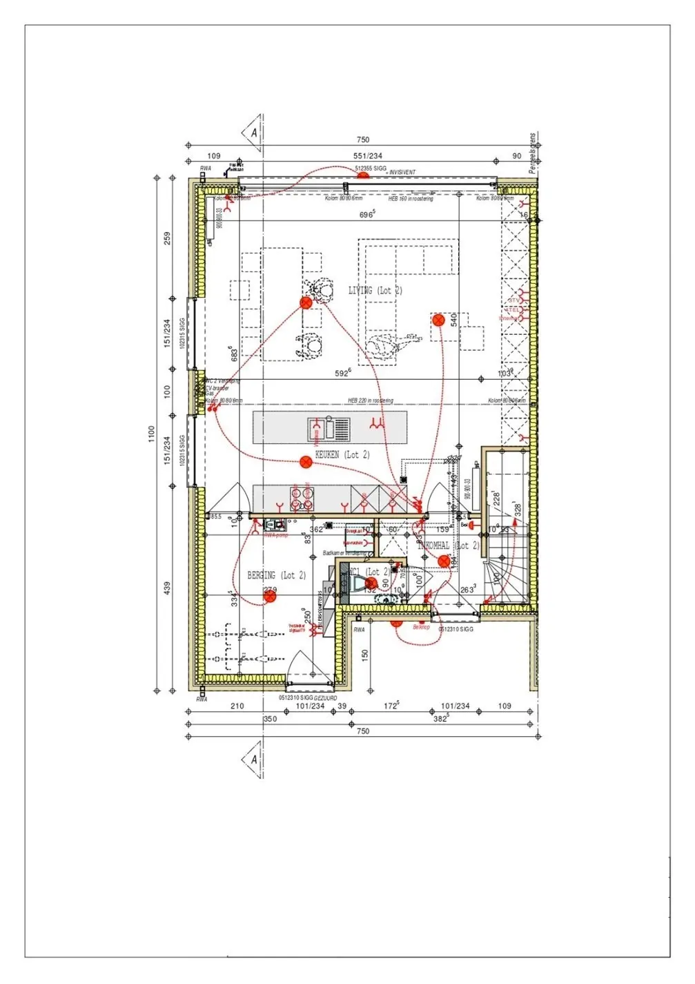
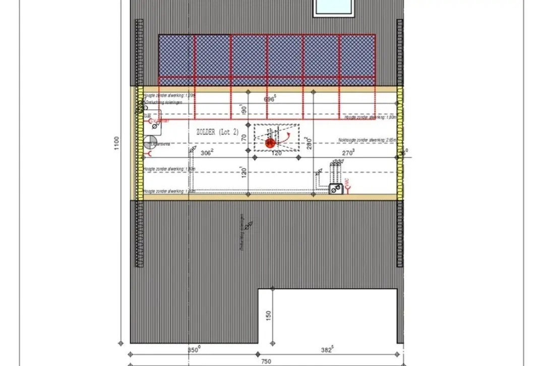
Huisnummer 1 is een halfopen nieuwbouw op een perceel van 301 m² met een bruto bewoonbare oppervlakte van 166 m² verdeeld over 3 bouwlagen. Op het gelijkvloers is er een inkom met gastentoilet, een ruime woonkamer met volledig uitgeruste keuken (wordt nog geïnstalleerd) en een berging die tevens dienst doet als fietsberging, met een aparte inkom. Op het verdiep zijn er 3 slaapkamers, een apart toilet en een badkamer met bad, douche en dubbele lavabo. De zolder is toegankelijk via een inklapbare trap.
Alle materialen zijn reeds gekozen en de werken zijn in uitvoering. De woning is reeds gebouwd en te bezichtigen, u zal kunnen verhuizen bij akte. De aangeboden prijs is exclusief kosten.
Indien u een bezoek wenst te brengen aarzel dan niet om contact op te nemen.
Bebouwing
- Bouwjaar
- 2021
- Woonoppervlakte
- 160m2
- Grondoppervlakte
- 301m2
- Aantal slaapkamers
- 3
- EPC Index
- 40.00kWh / (m2jaar)
Ruimtelijke ordening
- Stedenbouwkundige vergunning
- ja
- Rechterlijke beslissing
- nee
- Voorkooprecht
- nee
- Verkavelingsvergunning
- ja
- Stedenbouwkundige bestemming
- Woongebied
- Overstromingskans perceel (P-score)
- A
- Overstromingskans gebouw (G-score)
- A
Comfort
- Tuin
- Ja
- Ventilatie
- Ja
Voel je de aantrekkingskracht?
Laat je gegevens achter en wij nemen graag contact met je op voor een afspraak.