Energiezuinige nieuwbouwwoning nabij het centrum - 6% BTW mogelijk
 
         
         
         
         
         
         
         
Louis Van Haecke
Bebouwing
- Bouwjaar
- 2025
- Woonoppervlakte
- 135m2
- Grondoppervlakte
- 199m2
- Aantal slaapkamers
- 3
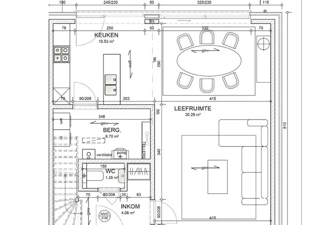
In een rustige buurt in Kuurne worden 3 moderne nieuwbouwwoningen gerealiseerd met oog voor kwaliteit, comfort en duurzaamheid. Deze woningen worden gebouwd volgens de nieuwste EPB-normen en zijn voorzien van vloerverwarming, een lucht/water warmtepomp (Daikin) en zonnepanelen – ideaal voor wie energiezuinig wil wonen.
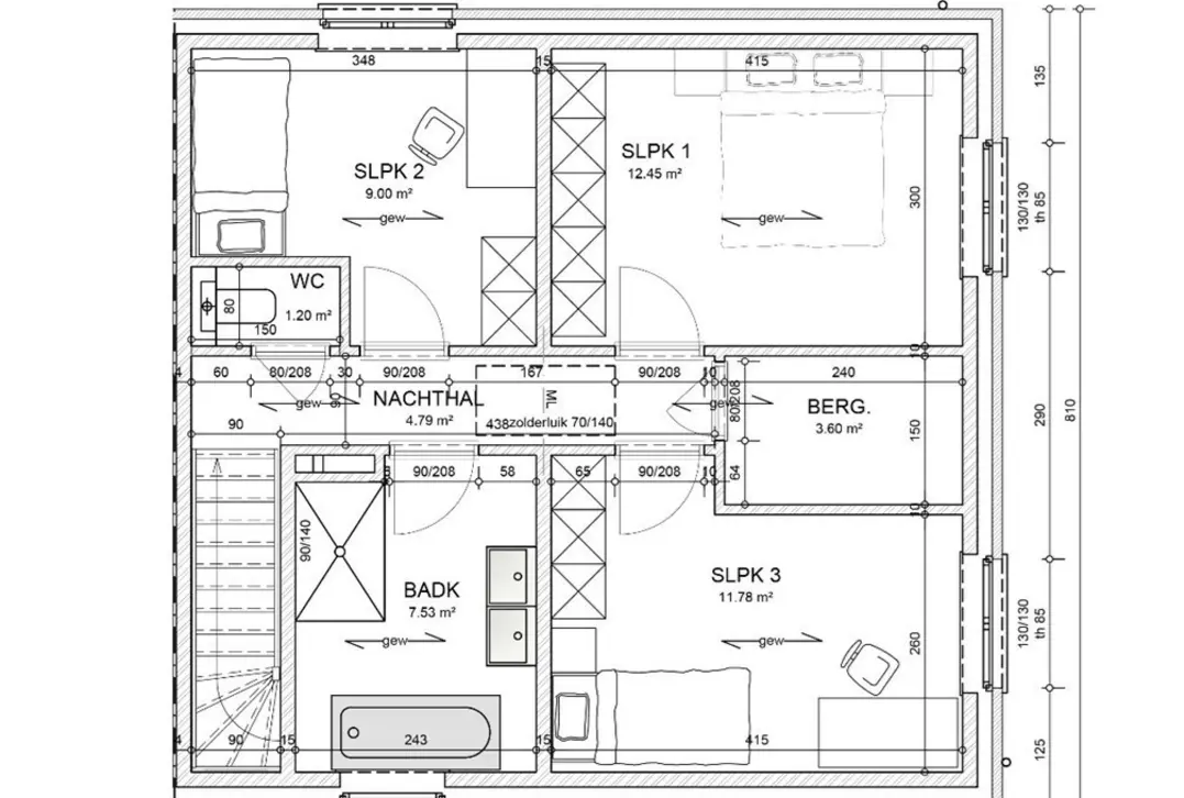
Elke woning beschikt over:
- Een lichtrijke leefruimte met open keuken
- 3 slaapkamers
- Badkamer met bad én douche
- Apart toilet op elk niveau
- Diverse bergingen, zolderluik én privatieve tuin met terras
- Parkeerplaats(en) bij te kopen
- Uitweg via een poortje achteraan de tuin
De strakke architectuur combineert een wit-grijze gevelsteen met zwarte/antraciet ramen in pvc en een zwart hellend dak. Alle woningen zijn voorzien van superisolerend glas, ventilatiesysteem D en een regenwaterput van 7.500L.
Troeven:
✅ Vloerverwarming op beide verdiepingen
✅ Lucht/water warmtepomp + zonnepanelen
✅ Ventilatiesysteem D met warmterecuperatie
✅ Energiezuinig en onderhoudsvriendelijk
✅ Rustige ligging nabij centrum en voorzieningen 
De opgegeven prijs is btw exclusief en zonder aankoopkosten.
Mogelijkheid aan 6% btw op constructiewaarde en 12% registratierechten op grondwaarde indien voldaan aan voorwaarden.
Bebouwing
- Bouwjaar
- 2025
- Woonoppervlakte
- 135m2
- Grondoppervlakte
- 199m2
- Aantal slaapkamers
- 3
- Aantal badkamers
- 1
- EPC Index
- In aanvraag
- Energieklasse
- A+
Ruimtelijke ordening
- Stedenbouwkundige vergunning
- ja
- Rechterlijke beslissing
- nee
- Voorkooprecht
- nee
- Verkavelingsvergunning
- ja
- Stedenbouwkundige bestemming
- Woongebied
- Overstromingskans perceel (P-score)
- A
- Overstromingskans gebouw (G-score)
- A
Comfort
- Tuin
- Ja
- Ventilatie
- Ja
- Airco
- Ja
Voel je de aantrekkingskracht?
Laat je gegevens achter en wij nemen graag contact met je op voor een afspraak.
 
     
     
     
     
     
     
     
     
    